良コスパの建売住宅
来て見て実感!

狭小地でも叶う、
心地よいゆとり

渋谷区東4丁目

〈当社販売物件 仲介手数料無料〉

新築

18000

万円

土地 51.90㎡ / 建物 93.6㎡ /
ZEH水準の断熱性能

ご来場予約はこちら

東京組は、城南/横浜川崎エリアを中心に30年、6000棟以上の住宅を手掛ける住宅工務店です。
地域に根ざしたノウハウで、土地の形にとらわれず最適な間取りを提案。
木製サッシやオリジナル建材を多く保有し、地下室の施工や他社とは異なる提案が可能です。
お気軽にご来場のうえ、家づくり/土地探しなどの疑問お悩みをお聞かせください。

建売住宅の場所

都心の狭小地でも叶う、心地よいゆとり

恵比寿駅/渋谷駅から徒歩圏内。
都心部の限られた敷地条件の中でも、暮らしにゆとりを感じられる
住まいを追求しました。動線計画や光の取り入れ方を工夫し、
狭さを感じさせない空間づくりを実現しました。

外観

リビング

ご来場予約はこちら

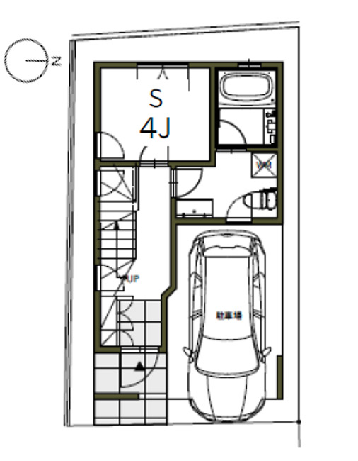
間取り

 

アクセス

東京都渋谷区東 4-12-29
恵比寿駅から徒歩 15 分
渋谷駅から徒歩 16 分

物件情報

土地

所在地
東京都渋谷区東四丁目12-29
敷地面積
51.90㎡(15.70坪)

建物(地上3階)

延床面積
51.90㎡(15.70坪)
建築面積
35.03㎡(10.59坪)

会社情報

社名
株式会社 東京組
代表者
前田 俊介
本社所在地
〒158-0097 東京都世田谷区用賀4丁目10−1
世田谷ビジネススクエア 23階
登録免許
建築業許可 {許可番号 東京都知事許可(特-1)第107331号}
一級建築士事務所登録 {登録番号 東京都知事 第63387号}
宅地建物取引業者免許証 {東京都知事(5)第76154号}
取引銀行
きらぼし銀行 祖師谷支店
三菱UFJ銀行 玉川支店
さわやか信用金庫 上野毛支店
川崎信用金庫 高津支店
城南信用金庫 用賀支店  
Copyright © TOKYOGUMI CO., LTD. All Rights reserved.